電話でのお問い合わせは092-600-1856
〒811-2405 福岡県糟屋郡篠栗町大字篠栗2774-2

| 名称 | 東公園台一丁目貸店舗 |
| 所在地 | 福岡県糟屋郡志免町東公園台1丁目5-27 |
| 交通アクセス | 香椎線須恵駅 徒歩:21分/1639m 香椎線須恵中央駅 徒歩:22分/1867m |
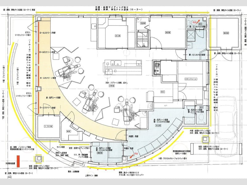
| 使用面積 | 132.95㎡ (約40.22坪) |
| 敷金 | 有 6ヶ月 |
| 礼金 | 無 |
| 建物構造 | 鉄骨造 |
| 階建・階 | 地上1階 |
| 築年月日 | 1992[平成4]年04月 (築33年11ヶ月) |
| 駐車場 | 平置き駐車場1台(賃料込)有り |
| 形式・状況:自走(平置きも含む) | |
| 接道状況 | - |
| 賃貸区分 | 定期借家 |
| 契約期間 | 5年 |
| その他 | 保証会社指定有 出店業種条件等…居抜き、造作譲渡:造作譲渡なし 前テナント業種:歯医者 |
| 店舗事務所 賃借依頼のお問合わせはこちら |