本文へスキップ

福岡県糟屋郡の空とぶふどうさん株式会社は不動産のどんな悩みも全力解決

電話でのお問い合わせは092-600-1856

〒811-2405 福岡県糟屋郡篠栗町大字篠栗2774-2

借りたい方(賃借希望)

  1. トップページ
  2. 借りたい方

賃借物件

賃借のながれ|空とぶふどうさん土地のみ|空とぶふどうさん店舗|空とぶふどうさん工場|倉庫|空とぶふどうさん事務所|空とぶふどうさん
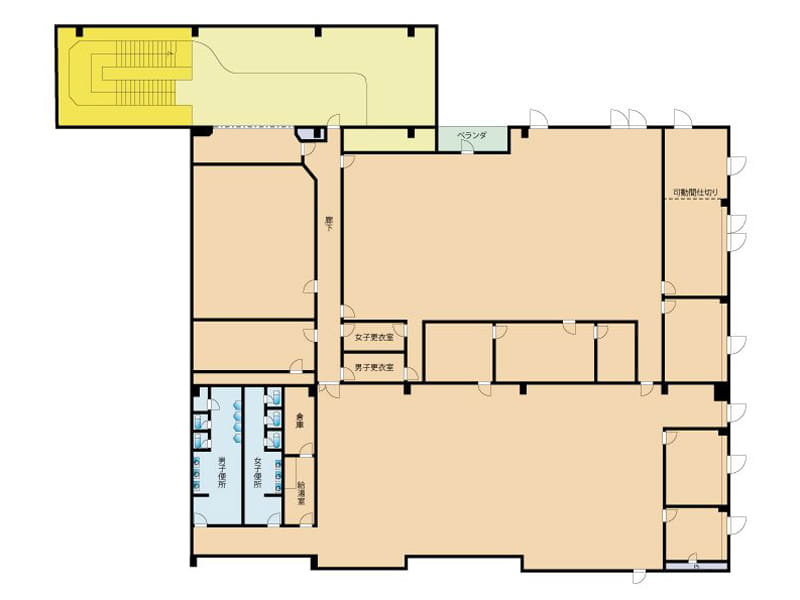
井相田三丁目事務所|空とぶふどうさん|福岡

井相田三丁目事務所

賃料:57.64万円

カテゴリー:事務所

所在地:福岡県福岡市博多区井相田3丁目 2-1
使用面積:866.55㎡ (約262.13坪)

→この物件の詳細を見る

BIJOUX OHORI BLD|空とぶふどうさん|福岡

BIJOUX OHORI BLD

賃料:39.93万円

カテゴリー:店舗|事務所(新築)

所在地:福岡県福岡市中央区荒戸1丁目 13-14
使用面積:37.73㎡ (約11.41坪)

→この物件の詳細を見る

オフィスパレア多の津Ⅰ|倉庫|空とぶふどうさん|福岡

オフィスパレア多の津Ⅰ

賃料:99万円

カテゴリー:倉庫

所在地:福岡県福岡市東区多の津1丁目 13-12
土地面積:公簿 484.18㎡ (約146.46坪)
使用面積:331.2㎡ (約100.19坪)

→この物件の詳細を見る

大野城市中1丁目|倉庫|空とぶふどうさん|福岡

倉庫(大野城市中1丁目)

賃料:330万円

カテゴリー:倉庫

所在地:福岡県福岡市中央区荒戸1丁目 13-14
土地面積:572.98㎡ (約173.33坪)
使用面積:105.3㎡ (約31.85坪)

→この物件の詳細を見る

ラーメン屋居抜|福岡市南区屋形原5丁目|空とぶふどうさん|福岡

ラーメン屋居抜(福岡市南区屋形原5丁目)

賃料:25.3万円

カテゴリー:店舗(戸建)

所在地:福岡県福岡市南区屋形原5丁目 6-25
使用面積:89.33㎡ (約27.02坪)

→この物件の詳細を見る

オロシアム5号館|倉庫|空とぶふどうさん|福岡

オロシアム5号館

賃料:330万円

カテゴリー:倉庫

所在地:福岡県福岡市東区多の津1丁目6番2号
土地面積:公簿 2502.06㎡ (約756.87坪)
使用面積:6695.18㎡ (約2025.29坪)

→この物件の詳細を見る

サンイースト福岡ビル|倉庫|空とぶふどうさん|福岡

サンイースト福岡ビル

賃料:342.09万円

カテゴリー:倉庫

所在地:福岡県福岡市博多区沖浜町
使用面積:1713.42㎡ (約518.31坪)

→この物件の詳細を見る

岡﨑ビル|空とぶふどうさん|福岡

岡﨑ビル

賃料:66万円

カテゴリー:店舗|事務所

所在地:福岡県福岡市中央区白金2丁目11-14
土地面積:198.72㎡ (約60.11坪)

→この物件の詳細を見る

新宮町貸倉庫|空とぶふどうさん|福岡

新宮町貸倉庫

賃料:71.5万円

カテゴリー:倉庫

所在地:福岡県糟屋郡新宮町上府北3丁目 776番27(地番)
土地面積:公簿 1006㎡ (約304.32坪)

→この物件の詳細を見る

volare西新|空とぶふどうさん|福岡

volare西新

賃料:34.551万円

カテゴリー:店舗(新築戸建)

所在地:福岡県福岡市早良区西新1丁目3番10号
使用面積:57.45㎡ (約17.38坪)

→この物件の詳細を見る

東公園台一丁目貸店舗|空とぶふどうさん|福岡

東公園台一丁目貸店舗

賃料:26.4万円

カテゴリー:店舗|事務所

所在地:福岡県糟屋郡志免町東公園台1丁目5-27
使用面積:132.95㎡ (約40.22坪)

→この物件の詳細を見る




解体見積比較でGO!|解体工事見積サイト|北部九州

空とぶふどうさん株式会社

〒811-2405
福岡県糟屋郡篠栗町大字篠栗2774-2
TEL.092-600-1856
FAX.092-600-1857

許認可:古物商許可証
   (福岡県公安委員会
    第901152510095号)